青石在石材外墻干掛上的應用并不是很常見,很大一部分原因是材質的問題,造成施工難度大,當然還有一個是顏色的喜好,青石做裝飾可以,但是大面積墻面應用也的確不常見,而同樣是砂巖的黃沙巖產品相對來說就應用的多了,看下圖,所以技術不是問題,關鍵還是消費者的喜好。技術遲早都是可以解決的。一起來了解下砂巖石材幕墻的一些探討。

黃沙巖幕墻應用
石材幕墻用天然石板材過去主要采用天然花崗石建筑板材,現在有很多工程采用天然凝灰巖(砂巖)建筑板材。由于有關規范(標準)沒有凝灰巖(砂巖)的內容,為幫助廣大工程技術人員在使用凝灰巖(砂巖)石材幕墻時掌握有關技術,特對凝灰巖(砂巖)石材幕墻有關技術進行討論。
石材科學分類方法應該是根據石材的地質組成來劃分其種類,從地質學的角度來看,地殼土層中的巖石分為下列三種類:
(1)火成巖
這些巖石從熱的熔化的材料中形成,花崗巖和玄武巖是火成巖中的兩種。
(2)沉積巖
這些巖石起源于其他巖石的碎片和殘骸,這些碎片在水、風、重力及冰等各種因素的作用下移動到一個由沉積物形成的盆地中沉積,沉積物壓縮和膠結后形成堅硬的沉積巖。沉積巖由其他巖石中豐富的物質所組成,石灰巖、砂巖以及凝灰巖是沉積巖中的三類型。
(3)變質巖
這些巖石形成于其他已經存在的巖石在受熱或壓力作用下進行了結晶或重結晶。大理巖、板頁巖和石英巖是變質巖中的三種。
從以上可以看出,凝灰巖、花崗巖、大理巖的區別是明顯的,它們分別屬于石材的三大種類,凝灰巖是沉積巖,花崗巖是火成巖,而大理巖是變質巖,因此凝灰巖不是大理巖,根據美國規范ASTM C119—“規格石材相關的標準術語”,凝灰巖是“可通過分層結構來劃分的結晶的或微結晶的石灰巖的一個變種”。
花崗石原指花崗巖加工的石材,而現在所稱的花崗石是一個商品名稱,它包括所有可作為飾面石材,并以硅酸鹽礦物為主的火成巖,花崗石以氧化硅為主,含有氧化鋁、氧化鈣、氧化鎂、氧化鐵等成分,因其形成溫度高,各種礦石晶體鑲嵌嚴密,質地堅硬,耐酸、堿、鹽的腐蝕,化學穩定性好,但因其中含有石英,在高溫下會膨脹碎裂,此外氧化鐵含量高時,石材表面會出現銹斑。花崗石多數結構緊密,呈現出美麗的自然構造紋理,具有很強的裝飾性。
凝灰巖是在大氣條件下從含碳酸鹽的泉水(通常是熱泉)中沉淀而成的一種鈣質材料。含有二氧化碳的循環地下水帶走了溶液中大量的鈣質碳酸鹽,當地下水到達泉水表面時,一些二氧化碳釋放出來就導致了一些鈣質碳酸鹽沉淀而成為凝灰巖(通常在淺池塘的底部)。與在遠古的海洋中形成的石灰巖不同的是,凝灰巖是從河流或池塘里富含石灰的飽和水中通過碳酸鹽的快速沉淀而形成的。這一快速沉淀限制了有機物和氣體,在凝灰巖中產生了孔隙及明顯的基床平面特征,這就形成了凝灰巖的美麗紋理。與此同時不利的一面上,這些孔隙及基床平面特征使得凝灰巖在氣候中暴露時會產生內部的裂縫和分層,發生沿基床平面的腐蝕和惡化,進一步降低了石材弱方向的強度。但是如果凝灰巖得到很好的加固,它在尺寸穩定性、抗凍融能力、壓縮強度等方面的物理性能就可以被認為與大理巖類似。而且除了孔隙以外,凝灰巖自身通常是密實和不透水的。
砂巖(金年華天然石材),產地巴基斯坦,為生物碎屑灰質巖,鏡下觀察:
結構構造:生物碎屑結構, 塊狀構造。
礦物成分:碎屑 (生物碎屑)60% 、膠結物40%,由次多量塵點狀碳酸鹽灰質和少量氧化鐵質組成。
巖石為生物碎屑灰質巖,呈黃白—淺黃褐色,由大量的生物碎屑和次多量的灰質及少量氧化鐵質膠結而成。巖石中的生物碎屑含量和種類極為豐富,以有孔蟲為主,其次為腕足類、腹足類、莛科類和棘皮生物海膽類及介形蟲等。生物碎屑碎片占巖石中絕大部分,因而定名為生物碎屑灰質巖。生物碎屑中的灰質粒度極為細小,僅在0.001mm左右,屬原始未經重結晶海洋碳酸鹽沉淀物,經后期壓實作用而成的巖石。而分布于碎屑殼壁上的灰質則呈纖維狀或超顯微鱗片狀集合體產出。個別灰質局部略有重結晶而呈微粒狀現象。由于巖石中的硐酸鹽基本沒有重結晶,呈原始塵點狀或泥狀沉淀,說明巖石屬沉積世代較新的二迭系—第三系平靜淺海相沉積的生物碎屑灰質巖。
膠結物由次多量塵點狀或超顯微鱗片狀碳酸鹽灰質和少量氧化鐵質組成,灰質呈不均勻團粒狀散布于生物碎屑間,粒度均<0.001mm受氧化鐵質的渲染,局部呈不均勻淺黃—淺黃褐色。
砂巖(金年華天然石材)化學成分:
氧化鈣 50.54% 、氧化鎂 1.88%、 二氧化硅 2.38%、三氧化二鋁 2.04%
大理石學名大理巖,因盛產于我國云南大理點蒼山而得名。現在所說的大理石實際上包括所有能作飾面石材的變質巖。大理石成分以碳酸鈣為主,約占58%以上,另外含有碳酸鎂、氧化鈣、氧化鎂等。因而當空氣潮濕并含有二氧化硫氣體時,大理石表面會發生化學反應生成石膏,呈現風化現象。
凝灰巖及砂巖沒有國家標準(行業標準),現列出性能參考參數見下表。

從上表可以看出凝灰巖(砂巖)的特點是吸水率高、強度低。近年來的工程建設中,對凝灰巖的材質進行了大量的檢測(例如東莞市行政中心),對砂巖材質也進行了檢測(例如深圳市文化中心),取得了一些參數,使我們對凝灰巖(砂巖)有了初步的認識,但總體上來講,由于使用凝灰巖(砂巖)的工程還不多,且凝灰巖(砂巖)產地分散,各地產品材質差異很大,因此每個工程在使用凝灰巖(砂巖)時都應對材質進行檢測,以便對材質進行評估。同時要對凝灰巖(砂巖)石板材表面涂有機硅防水劑進行防水處理,深圳市文化中心用砂巖石板材,通過表面防水處理,砂巖石板材吸水率降低到0.8% 以下,且強度有大幅度提高,說明此類石材用有機硅防水劑進行表面處理的必要性。但在設計計算時,現在尚不宜考慮處理后的效果,即仍按未處理前參數采用。對此類石板材也進行了(抗彎、抗沖擊)承載能力試驗,取得了一些參數,但我們對它破壞特點的認識尚不充分,因此設計時,總安全系數K宜取為3.5,即材料性能分項系數K2取為2 .5
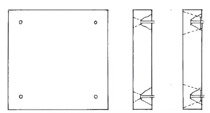
從石材幕墻實際工程破壞和試驗結果看,石材幕墻石板材連接破壞大部分為槽(孔)沖切(錐體)破壞,對槽(孔)破壞情況的分析表明,槽(孔)與勾(栓)配合尺寸的正確選擇是非常重要的,它對石材幕墻石板材連接性能起到關鍵作用。勾(栓)與槽(孔)的配合不僅要考慮施工、安裝時便于調整,而更重要的是考慮槽(孔)的受力特點,在嚴格控制施工偏差、滿足施工安裝必要的調整尺寸基礎上,確定槽(孔)尺寸,使其達到最佳受力狀態。
現在對各種連接配合構造分別進行討論。
1.通槽通長勾(圖1)
通槽即沿板上、下邊通長開槽,一般槽寬取7mm,槽深取15~17mm,這樣取值是按勾厚4mm,勾錨入槽10~12mm考慮的,通長勾勾長一般取比板寬兩端各減5mm考慮。

圖1 通槽(普通槽)通長勾
從破壞情況分析,通槽通長勾破壞時石材沿槽底向下剝離,剝離角隨石材強度而異,石材強度高,角度小(即剝離面積大),石材強度低,角度大(即剝離面積小)。由于通長設勾,總的剝離面積等于板寬乘剝離深度,剝離面積大,受力特別有利,但勾的用料較多。從以上分析還可看出如果槽開得很深,剝離深度不會隨開槽深度而相應改變,即槽深比勾錨入深度大于5mm以上后,會減少剝離面積,減少抗剪承載能力(圖2)。

圖2 通槽(深槽)通長勾
2.通槽短勾(圖3)
石板材上開通槽(一般槽寬取7mm,槽深取15~17mm),用短勾連接,板材受剪破壞時,短勾兩側槽壁剪切破壞,并從勾下槽底向下剝離,剪切破壞面積為槽壁剪切面積加槽底下板面剝離破壞面積,剝離面積隨勾寬和槽深而變化。總體來說,其總剝離面積遠遠小于通槽通長勾,是所有勾槽連接節點中剪切(剝離)面積最少的,即最易剪切破壞的連接節點。

圖3 通槽短勾
3. 短平槽短勾(圖4)
石板材上開短平槽(一般槽寬取7mm、槽長度取100mm),用短勾連接,石板材受剪破壞時,短勾兩側槽壁呈γ0角剝離,槽底呈α0角剝離,剪切破壞面積為槽壁兩側剝離面積加槽底以下面板剝離面積,總剝離面積大于通槽短勾,但應注意到短平槽槽長與勾寬的關系,保持槽長為勾寬+10mm(2×5 mm)時槽壁沿槽端剝離(如按規范規定長度取不少于100mm,則勾寬應為90mm),如果槽長過長(即大于勾寬2×5 mm)就有可能在槽中部剝離或沿槽壁切斷,即短平槽開槽過長,對槽受力不利。

圖4 短平槽短勾
4. 弧形短槽短勾(圖5)
弧形短槽(一般槽寬取7mm,槽長、槽深與砂輪直徑和有效長度取值有關),用短勾連接,它要求勾下端處弦長(有效長度)比勾寬長(2×5 mm)10mm,以便安裝時調節(并考慮開槽、制勾及安裝時定位偏差),受力破壞為剝離破壞,剝離破壞面積與勾寬和勾錨入深度有關,不會隨弧形短槽開槽深度和寬度而相應改變,即同樣勾寬和勾錨入深度,開槽加深、加寬以后,剝離面積隨之減少,因此控制有效長度對弧形短槽抗剪承載能力至關重要。如按規范規定有效長度取不少于80mm,則勾寬應為70mm,如果勾寬40mm,則有效長度控制在50mm左右為宜。
短平槽(弧形短槽)如果采用蝶式勾,剪切破壞時,槽兩側剝離面積不同,即近勾側剝離面積大,遠勾側剝離面積小,甚至無剝離(槽壁剪切破壞),因此短平槽(弧形短槽)采用蝶式勾對受力不利。

圖5 弧形短槽短勾
5. 鋼銷式(圖6)
在石板材板上、下邊上開孔,一般孔徑為6~7mm,孔深22~33mm,破壞時石板在銷孔兩側呈γ0角,在孔底呈α0角剝離,孔深對剝離面積有影響,但孔深30mm以后繼續增加孔深其影響會越來越小。

圖6 鋼銷式
6. 背栓式(背栓式)
背栓式是在石板材背面開背栓孔,用背栓將石材和連接件緊固起來,形成連接節點。單切面背栓背栓孔深一般要大于板厚的一半(例如20mm板厚,孔深12mm)。這樣,在受風壓力時沖切破壞面積小于受風吸力時沖切破壞面積,且在反復沖擊時易于破壞。
雙切面背栓由于板材背面墊圈面積大于擴孔孔底面積,且抗沖擊厚度為板厚,受風壓力時沖切破壞面積大于受風吸力時沖切破壞面積(即單切面背栓最大沖切破壞面積),而且在反復沖擊時不會破壞。凝灰石(黃洞石)由于板材上有孔洞,如果背栓孔位于板上孔洞上(附近)有可能使連接失效。

圖7 背栓式 單切面背栓 雙切面背栓
從現有工程調查發現,勾(栓)鐵件銹蝕后體積膨脹,將槽(孔)擠壓破壞的情況屢屢發生,導至連接失效。因此勾(栓)必須采用不銹鋼(1Cr18Ni9 0Cr19Ni9等)或鋁合金(6063、6063a、6061、3003、5005等),不得采用碳鋼鍍鋅件和其它易銹鋼件。
從以上分析,我們可以看出凝灰巖(砂巖)石板的連接設計不僅要選用恰當的槽(孔)形式,并且對勾(栓)槽(孔)的配合尺寸也要正確選擇,如果勾(栓) 槽(孔)的配合尺寸選不當,將會可能使石板材連接能力降低,易于破壞。
通過以上討論,我認為凝灰巖(砂巖)用于石材幕墻是可行的,但要注意對材質的認識和評估,以及選擇正確的連接型式及勾(栓)槽(孔)的連接配合尺寸。凝灰巖(砂巖)用于石材幕墻的計算方法和花崗石石材幕墻相同,只是強度設計值取凝灰巖(砂巖)抗彎強度設計值(實測抗彎強度平均值/2.5)、抗剪強度設計值(實測抗彎強度平均值/5)。
客服熱線:











