石材 “ 包柱 ” 的方式及構造做法有哪些 重點介紹下
石材包柱有鋼筋網綁扎法、干掛法、粘貼法三種做法。其中鋼筋網綁扎法加工較簡便,但接縫處易產生泛堿問題;

干掛法可以解決泛水問題,但成形后的體量較大;粘貼法則只適用于面積較小、厚度在20mm以下的板材和高度不高的基體上。


1、鋼筋網綁扎法
鋼筋網綁扎法是一種傳統的鋪貼石材的施工方法。它的施工程序大體如下:設置鋼筋網;試拼編號;板材背面開槽;綁扎板材;找平吊直并臨時固定;灌漿;養護;嵌縫。

鋼筋網的設置形式
① 設置鋼筋網:如柱面上設有預埋件時,用銅絲或不銹鋼絲按施工圖大樣將鋼筋制成鋼筋骨架,固定于基體上。
當柱面沒有預埋件時,可用電錘在柱面上鉆孔,并于孔內安放膨脹螺栓,再用電焊將鋼筋與螺栓焊牢。
② 綁扎板材:用切割機在板材背面分別開四角開槽,穿插和固定好銅絲或不銹鋼絲。

板材背面槽口形式
③ 安裝板材:安裝時可按順時針,從正面開始由下向上逐層安裝,并用靠尺板找垂直,用水平尺找平整,用方尺找好陰陽角,緊固鋼(銅)絲。
板縫用石膏填塞,以防止板材移位和砂漿發生泌漿。灌漿時應根據板材顏色調制水泥砂漿,如淺色石材灌漿時應采用白水泥,以使板材底色不受影響。
④ 嵌縫:板材安裝完畢后,應清除板縫間多余的粉塵,用與板材底色相近的水泥漿進行嵌縫。對于鏡面石材,如面層光澤受到影響,應重新打蠟上光。
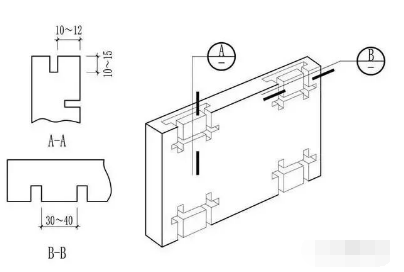
2、干掛法
干掛法就是用特制的不銹鋼掛件,將石材固定在基體上的一種施工方法。這種方法不需要用水泥砂漿灌注或水泥鑲貼,方便簡捷。


方法是直接在石板上打孔、開槽,然后用不銹鋼連接件、角鋼與埋在柱體內的膨脹螺栓直接相連而成。

不銹鋼掛件的布置
3、粘貼法
粘貼法就是將板材用聚合物水泥砂漿或膠粘劑粘貼到基體表面的一種施工工藝。
方法是用水泥砂漿在柱體上抹灰找平,用聚合物水泥砂漿或膠粘劑在找平層的表面和板材的背面鋪攤飽滿。按施工圖紙要求將板材就位,并用臨時工具進行頂卡固定。

柱面板材的臨時固定
客服熱線:











