1.穆斯林造型門頭系統主要特點
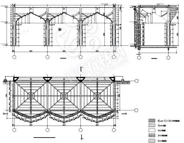
寧夏大劇院的東西南北四個門頭,采用的穆斯林式造型,外墻面采用陜西白麻石材,內吊頂采用表面噴涂石材花紋鋁板吊頂,吊頂鋁板為正面和側面兩個弧形拱交匯而成,充分展現穆斯林風格。

西門頭現場照片
2.幕墻系統主要材料
吊頂內龍骨采用200×150鍍鋅方鋼和80×60×5方鋼,50×50×5角鋼縱橫交錯布置,其中80×60×5方鋼采用彎弧處理,鋁板采用3mm厚鋁板表面真石漆噴涂處理。

吊頂鋼龍骨安裝照片
3.穆斯林造型門頭系統難點分析
由于吊頂鋁板是兩個曲面交接而成,所以鋁板的下單和分格成為了本系統的難點,雖然鋁板為單曲鋁板,但是曲面切割流線造型仍然需要準確的標注和表達。

4.穆斯林造型門頭系統解決方案 139石材網
經過運用建模輔助軟件草圖大師、犀牛建模分析,用于對曲面的進行訂單處理。準確的完成鋁板交縫處造型的對接。準確的加工尺寸,給現場安裝創造了良好的條件。

西門頭吊頂完成照片
內容摘自:《幕墻設計》雜志、 幕墻世界Weekly
作者:北京港源建筑裝飾工程有限公司
吳治剛、溫明、刁飛宙、許昌得、張東輝
寧夏大劇院的東西南北四個門頭,采用的穆斯林式造型,外墻面采用陜西白麻石材,內吊頂采用表面噴涂石材花紋鋁板吊頂,吊頂鋁板為正面和側面兩個弧形拱交匯而成,充分展現穆斯林風格。

西門頭現場照片
2.幕墻系統主要材料
吊頂內龍骨采用200×150鍍鋅方鋼和80×60×5方鋼,50×50×5角鋼縱橫交錯布置,其中80×60×5方鋼采用彎弧處理,鋁板采用3mm厚鋁板表面真石漆噴涂處理。

吊頂鋼龍骨安裝照片
3.穆斯林造型門頭系統難點分析
由于吊頂鋁板是兩個曲面交接而成,所以鋁板的下單和分格成為了本系統的難點,雖然鋁板為單曲鋁板,但是曲面切割流線造型仍然需要準確的標注和表達。

4.穆斯林造型門頭系統解決方案 139石材網
經過運用建模輔助軟件草圖大師、犀牛建模分析,用于對曲面的進行訂單處理。準確的完成鋁板交縫處造型的對接。準確的加工尺寸,給現場安裝創造了良好的條件。

西門頭吊頂完成照片
內容摘自:《幕墻設計》雜志、 幕墻世界Weekly
作者:北京港源建筑裝飾工程有限公司
吳治剛、溫明、刁飛宙、許昌得、張東輝
客服熱線:











